Wir möchten Ihnen hier unseren Vorschlag zum Nachnutzungskonzept für die Konversionsflächen Süd-Ost präsentieren.
Hier erfahren Sie, warum wir genau diesen Vorschlag eingereicht haben.
Unser Leitbild:
„Die alleinige Konzentration auf die „gebaute Stadt“ reicht nicht aus, um die „Stadt“ als den Lebensraum für uns Menschen hinreichend zu definieren. Erst durch die Berücksichtigung der vielfältigen Grünstrukturen werden unsere Städte zu dem, was sie sind, sein wollen und auch sein müssen: attraktive und für uns Menschen nutzbare Lebensräume“.
(aus: Naturschutz und Landschaftspflege in der integrierten Stadtentwicklung. Argumente, Positionen, Hintergründe – Herausgeber: Bundesamt für Naturschutz (BfN), Berlin 2015)
Randbedingungen:
- Anfang 2016 wurde klar, dass durch den Zugriff der TU-Darmstadt auf die Flächen E1 & E2 (Teilfläche Windkanal und südlich anschließende Rodungsfläche) die von der Stadt Griesheim überplanbare Gesamtfläche deutlich reduziert wurde.
- Eine von den Naturschutzbehörden geforderte Abstandsfläche zum TU-Gelände wird die bebaubare Fläche im Bereich D noch zusätzlich verkleinern.
- Erst in Nov. 2016 wurde im Rahmen eines s.g. Scopingtermins (Rahmenplanungstermin Stadt Griesheim mit Umweltbehördern und -verbänden) bekannt, dass aufgrund des langen Brachliegens des Gesamtgeländes die im Außenbereich liegenden Teilflächen G, H & I naturschutzfachlich betrachtet eine Bebauung nicht zulassen.
- Das Herzstück, die Teilfläche D, stellt aus Sicht des Forstamtes Wald, bzw. mit Bäumen bestandene Freiflächen dar. Eingriffe jeglicher Art sind daher nur in enger Abstimmung mit den Umweltbehörden möglich. Fällungen von großen Bäumen sind nicht möglich, was die Zahl und Lage bebaubarer Flächen stark reduziert.
- Auf alle Fälle sind Abstandsflächen vorzusehen, um Störungen der Fauna (Vögel, Fledermäuse) durch Lärm zu vermeiden. Damit sind alle Lärmintensiven Nutzungen der Fläche D ausgeschlossen (Sportanlagen, Schwimmbad, Gewerbe u.s.f.).
Grundzüge:
- Die WGG möchte auf den Konversionsflächen „Wohnbebauung und Einrichtungen für den Gemeinbedarf“ realisieren.
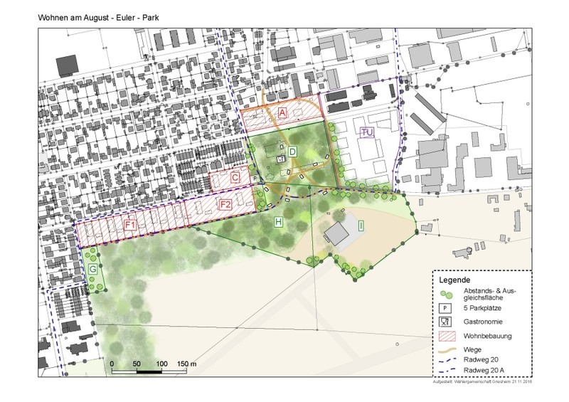
- Als Wohnbauflächen sind die Teilflächen A, C & F1/F2 geeignet.
- Dort wollen wir gemischt belegte Wohngebäude mit geförderten Sozialwohnungen, bezahlbarem Wohnraum (Kaltmiete maxi-mal 8,00 €/m²) und frei finanziertem Wohnraum schaffen. Kfz-Stellplätze sollen den zu errichtenden Gebäuden (vorwiegend offene Bauweise) zugeordnet werden.
- Die Teilfläche D stellt eine große, in Teilen mit Wald bestandene Fläche dar, die in Abstimmung mit dem Naturschutz weitgehend erhalten und als Grünfläche mit speziell angepassten Nutzungen (Parkbänke, Brunnen) gestaltet werden soll. Bauflächen in diesem Park stehen in funktionaler Beziehung zu den Nutzungen.
Zum Beispiel:- Gastronomie (Cafe/Bistro, Biergarten) im Zentrum des Parks,
- Öffentliche WC-Anlage,
- Fahrrad/E-Bike-Verleih mit Ladestation,
- Kinderspielplatz (mit WLAN-Hotspot), Boule-Bahnen etc.
Vorteile unseres Konzeptes:
- Die Teilfläche D (August-Euler-Park) wird nicht bebaut. Sie soll der Erholung und dem kulturellen Leben in Griesheim dienen.
- Wohnen am August-Euler-Park bedeutet: eine attraktive Wohnlage, mit Anschluss an das System innerörtlicher Straßen und Rad- & Fußwegen.
- Durch die naturnahe Nachnutzung der Teilfläche D kann die Stadt Griesheim ihr „Öko-Punkte-Konto“ wieder deutlich aufbessern.
- Der in der Nähe verlaufende hessische Fernradweg Nr. 20 kann zukünftig durch die Teilfläche D führen und auf diesem Wege unsere Stadt mit einem attraktiven Zwischenstopp für Touristen bereichern.
- Die Kosten für den Erwerb der Teilfläche D fallen wesentlich geringer aus. (Einsparung ca. 3 Mio. €)
- Das bestehende Straßensystem kann unverändert genutzt werden. Neue Straßen sind wegen des maßvollen Zuwachses an neuen Wohnungen, nicht erforderlich.
Links:
Stact Griesheim: Alle Vorschläge zum Nachnutzungskonzept der Konversionsflächen


Schreibe einen Kommentar